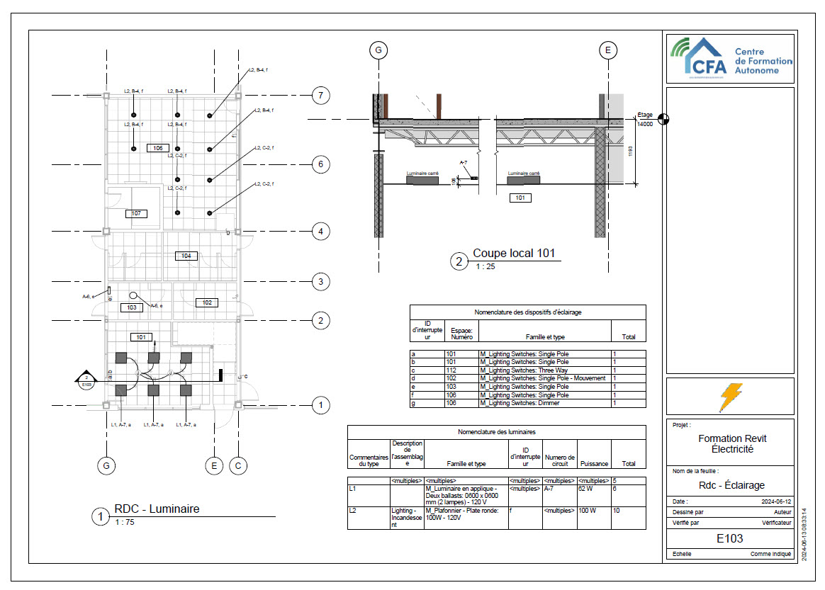
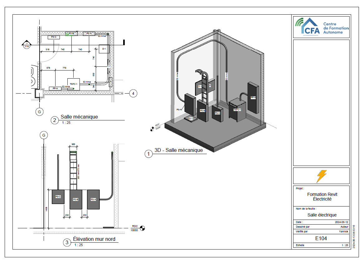
Description
Formation de 45 h complètement en ligne.
Découvrez la plupart des commandes de Revit pour la modélisation et les outils de conception pour les systèmes électriques d’un bâtiment.
À la fin de cette formation, vous aurez réalisé un jeu de 5 feuilles de dessin en lien avec un projet d’électricité.






